2024年度 千葉商科大学 地域志向活動助成金 事業報告

2024年度 千葉商科大学 地域志向活動助成金 事業報告

ロゴ画像

地域計画検討案作成プロジェクト

赤レンガをいかす会では、2024年度、千葉商科大学の「地域志向活動助成金制度」の助成を受け、
市川赤レンガの保存と活用を含めた「市川国府台」地域計画検討案作成プロジェクト〉
に取り組んできました。

期間:2024年5月~2025年3月

目的
市川赤レンガの保存と活用を中心に、国府台地域に残る歴史的な文脈(地形や歴史的建造物、伝承等)を地域の計画に捉え直し、持続的な賑わいある地域の創出を促すことを目的としたものです。
学生と連携して実施し、学生にとってより広い実社会に触れる機会を提供することも目的としました。

実績
千葉商科大学政策情報学部榎戸敬介教授並びに榎戸ゼミ生、和洋女子大学金指助有里佳助教並びに金指ゼミ生と、2023年度に実施できなかった活用アイデアワークショップを実施しました。
令和3年度より継続的に展示している市川駅南口図書館の展覧会を行い、ワークショップの成果を市民に公開することができました。

第15回 CUC地域連携フォーラム(千葉商科大学)
2023年度 千葉商科大学 地域志向活動助成金 事業報告
地域志向活動助成金制度
募集概要
募集概要
概要報告
報告画像
報告画像

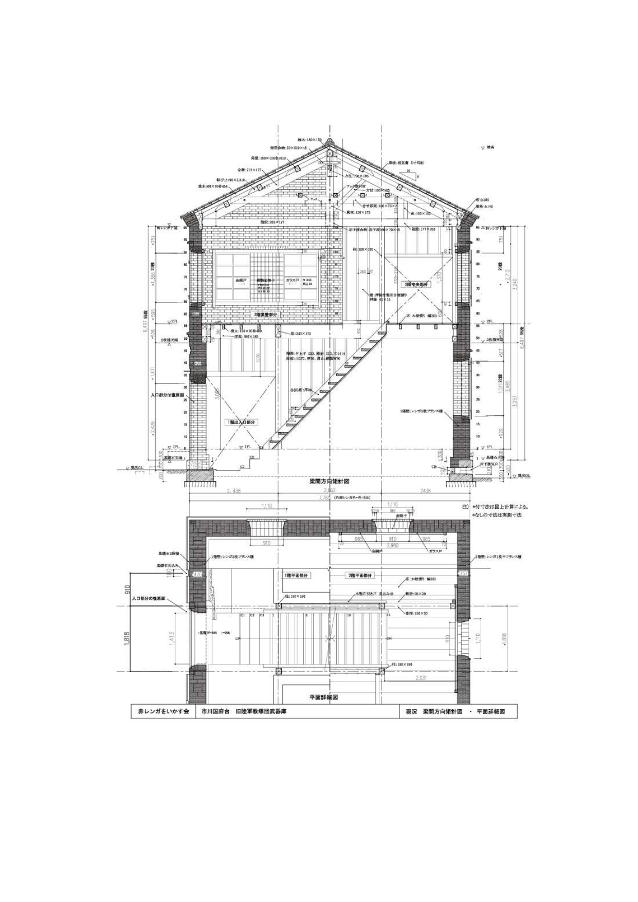
調査

2024年7月
報告画像
報告画像

活用

2024年10月
市川赤レンガ活用アイデアワークショップ
報告画像
報告画像
報告画像
報告画像
報告画像

展示

2024年11月
えきなんギャラリー展示 赤レンガから展望する国府台のまちづくり2
報告画像
報告画像

コメント



認証コード0009

コメントは管理者の承認後に表示されます。